Metode Kerja Bore Pile Manual : Hadi jaya bore land :

Metode Kerja Bore Pile Manual : Hadi jaya bore land :. 800 mm = 306 titik sebelum value engineering. Beberapa kelemahan dari pondasi bore pile : Tenaga kerja ahli tukang strauss pile bor pile manual didatangkan,seting alat dan persiapan mulai mengebor cukup singkat hanya beberapa jam saja.pengeboran dimulai dengan alat bore pile manual menggunakan mata bor khusus strauss pile.dua orang memegang stang bor dan mata bor diarahkan pada titik pondasi,alat di tekan sambil diputar sampai mata bor strauss pile terisi tanah dan. Menggunakan metode system wet boring sehingga saat pelaksanaan pengeboran membutuhkan banyak air untuk mendukung kerja mata bor saat menggali tanah. Cara kerja jasa strauss pile ini biasanya dalam satu alat bor dikerjakan dengan tenaga 2 manusia.

Jenis mini bored pile ini dapat digunakan untuk pembuatan pondasi dengan pengeboran tanah pada ukuran bore pile dengan diameter lubang 30 cm, 40 cm hingga 80 cm. Alat bor , alat bor pile , bore pile , bore pile purwokerto , bored pile , borepile bali , borepile bandung , borepile jakarta , borepile kalimantan , borepile medan , borepile palembang , borepile semarang , borpile pangandaran , pondasi bangunan , wash boring Ini semua dilakukan secara manual sebagai uraian cara dan metode kerjanya sebagai berikut: 800 mm = 306 titik sebelum value engineering. Pondasi bore pile mempunyai ketahanan yang tinggi terhadap beban lateral.

Bore Pile Jasa Bor Pile Indonesia
Bore Pile Jasa Bor Pile Indonesia from jasaborpileindonesia.com
Kami sudah berpengalaman selama belasan tahun dalam bidang spesialisasi pondasi bore pile dan pondasi pancang, dengan ketelitian dan kualitas terbaik untuk menghasilkan pondasi yang teruji kokoh dan kuat. Umumnya metode ini digunakan untuk tahap penyelidikan awal proyek pengeboran. Buat laporan harian bore pile temporary casing 6 m temporary full casing elev. Berikut adalah metode pelaksanaan bore pile pt. Bored pile / strausspile tenaga manual meskipun gaya kerja yang hampir sama, namun cara ini lebih praktis karena hanya dikerjakan dengan tenaga manual, hanya dengan menggunakan alat sederhana (simple), yakni mata bor, pipa, dan stang pemutar. Karena alat yang di gunakan tidak menimbulkan getaran yang menyebabkan kerusakan pada dinding bangunan sekitar. Jasa yang kami tawarkan sudah termasuk pengeboran, perangkaian besi dan pengecoran. Bore pile menggunakan mesin mini crane.

Dalam pembuatannya bor pile mempunyai 2 sistem metode kerjanya, yaitu :

Tahapan pekerjaan pondasi strauss pile. Dengan tujuan agar hasil pengeboran dan kualitas tiang pondasi bore pile menjadi kuat dan kokoh, sehingga bangunan yang nantinya didasari dengan pondasi yang kokoh akan berdiri secara kuat dan tahan akan guncangan dan. Pengangkutan alat dari workshop menuju lokasi pengeboran. Karena alat yang di gunakan tidak menimbulkan getaran yang menyebabkan kerusakan pada dinding bangunan sekitar. Bored pile / strausspile tenaga manual meskipun gaya kerja yang hampir sama, namun cara ini lebih praktis karena hanya dikerjakan dengan tenaga manual, hanya dengan menggunakan alat sederhana (simple), yakni mata bor, pipa, dan stang pemutar. Kesehatan dan keselamatan kerja 1.4 sumber data penulisan data yang dipakai dalam penyusunan laporan tugas pengganti kerja praktik ini adalah data sekunder. Berikut adalah metode pelaksanaan bore pile pt. Adapun metode bore pile menggunakan sistem bor basah (wet boring), sehingga dibutuhkan air yang cukup sebagai kelancaran pelaksanaan pekerjaan pengeboran. Ini semua dilakukan secara manual sebagai uraian cara dan metode kerjanya sebagai berikut: Bore pile menggunakan mesin mini crane. Pembuatan bak sirkulasi /bak spul. Cara kerja jasa strauss pile ini biasanya dalam satu alat bor dikerjakan dengan tenaga 2 manusia. Jenis mini bored pile ini dapat digunakan untuk pembuatan pondasi dengan pengeboran tanah pada ukuran bore pile dengan diameter lubang 30 cm, 40 cm hingga 80 cm.

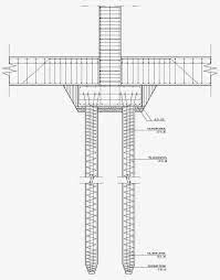
Kesesuaian antara metode kerja dengan spesifikasi / volume pekerjaan yang disyaratkan. Permukaan diatas dimana dasar bore pile didirikan dapat diperiksa secara langsung. Dalam pengerjaan metode strauss pile ini biasanya mulai dari diameter 20cm sampai 30cm, serta kedalamannya bor itu sekitar 6 meteran. Buat laporan harian bore pile temporary casing 6 m temporary full casing elev. Bor pile manual adalah kata lain dari pondasi strauss pile yang mempunyai pengertian jenis pondasi dangkal yang cara pelaksanaan atau metode kerja strauss pile dengan cara pengeboran secara manual dan dikerjakan oleh tenaga manusia menggunakan alat bor yang sederhana.

Harga Pondasi Bore Pile Per Meter Per Titik
Harga Pondasi Bore Pile Per Meter Per Titik from solusibetonreadymix.com
Pengangkutan alat dari workshop menuju lokasi pengeboran. Pondasi bore pile mempunyai ketahanan yang tinggi terhadap beban lateral. Metode bored pile mini crane dan strauss pile / bor pile manual biasanya sering di gunakan untuk memperkuat pondasi bangunan seperti : Jasa pondasi bor pile dan pondasi strauss pile manual didalam pengerjaan dan proses pembuatannya, tentu ada tahap dan cara pelaksanaan atau bisa disebut juga dengan metode kerja. Semakin berkembangnya metode kerja konstruksi pondasi dalam di indonesia, kami bumi karya. Karena alat yang di gunakan tidak menimbulkan getaran yang menyebabkan kerusakan pada dinding bangunan sekitar. Berikut adalah metode pelaksanaan bore pile pt. Permukaan diatas dimana dasar bore pile didirikan dapat diperiksa secara langsung.

Jasa pondasi bor pile dan pondasi strauss pile manual didalam pengerjaan dan proses pembuatannya, tentu ada tahap dan cara pelaksanaan atau bisa disebut juga dengan metode kerja.

Beberapa jenis alat dan metode pengerjaan bor pile. · tahap awal persiapan kerja Semakin berkembangnya metode kerja konstruksi pondasi dalam di indonesia, kami bumi karya. Metode kerja pekerjaan bored pile. Bore pile menggunakan mesin mini crane. Dalam pembuatannya bor pile mempunyai 2 sistem metode kerjanya, yaitu : By unknown — kamis, 12 mei 2016 — add comment — bor pile , bor pile manual , bore pile , bore pile jakarta , cara bore pile , jasa bor pile , jasa bore pile , jasa strauss pile , metode bore pile , metode strauss pile. Alat bor , alat bor pile , bore pile , bore pile purwokerto , bored pile , borepile bali , borepile bandung , borepile jakarta , borepile kalimantan , borepile medan , borepile palembang , borepile semarang , borpile pangandaran , pondasi bangunan , wash boring Cara atau metode kerja pondasi strauss pile. Yang dibawah ini akan saya jelaskan secara rinci tahap pekerjaan jasa strauss pile.tetapi sebelum masuk ke tahap pekerjaan strouss pile, tidak ada salahnya kita mengingat dan mengetahui apa itu yang di maksud dengan pekerjaan strauss pile. Jasa pelaksanaan pondasi bor pile jakarta ,bogor,depok,tangerang,bekasi,cikarang,karawang dengan metode wash boring maupun dry drilling dan teknik kerja yang baik sesuai prosedur bor pile sehingga target dapat dicapai dengan baik. Jasa bor pile manual/strauss pile di kerjakan pengeboraan tanah dengan penggerak alat tenaga manual atau tangan. Kesesuaian antara metode kerja dengan spesifikasi / volume pekerjaan yang disyaratkan.

Berikut diatas sudah kita bahas tentang perbedaan. Metode jasa pondasi bore pile mungkin banyak penyedia jasa bor pile yang sudah membuat artikel atau penjelasan masing. Pada artikel ini, kita akan sedikit membahas tentang metode kerja dalam pekerjaan pemasangan bored pile. Hadi jaya bore land : Bor pile manual adalah kata lain dari pondasi strauss pile yang mempunyai pengertian jenis pondasi dangkal yang cara pelaksanaan atau metode kerja strauss pile dengan cara pengeboran secara manual dan dikerjakan oleh tenaga manusia menggunakan alat bor yang sederhana.

Perbedaan Pondasi Bor Pile Dan Strauss Pile Yang Perlu Anda Ketahui
Perbedaan Pondasi Bor Pile Dan Strauss Pile Yang Perlu Anda Ketahui from 1.bp.blogspot.com
Bore pile menggunakan mesin mini crane. Jasa yang kami tawarkan sudah termasuk pengeboran, perangkaian besi dan pengecoran. Yang membedakan kedua pondasi tersebut adalah pada metode kerja dan kapasitas kerja. Pondasi bore pile mempunyai ketahanan yang tinggi terhadap beban lateral. Beberapa kelemahan dari pondasi bore pile : Dengan tujuan agar hasil pengeboran dan kualitas tiang pondasi bore pile menjadi kuat dan kokoh, sehingga bangunan yang nantinya didasari dengan pondasi yang kokoh akan berdiri secara kuat dan tahan akan guncangan dan. Pengangkutan alat dari workshop menuju lokasi pengeboran. Semakin berkembangnya metode kerja konstruksi pondasi dalam di indonesia, kami bumi karya.

Tenaga kerja ahli tukang strauss pile bor pile manual didatangkan,seting alat dan persiapan mulai mengebor cukup singkat hanya beberapa jam saja.pengeboran dimulai dengan alat bore pile manual menggunakan mata bor khusus strauss pile.dua orang memegang stang bor dan mata bor diarahkan pada titik pondasi,alat di tekan sambil diputar sampai mata bor strauss pile terisi tanah dan.

Metode jasa pondasi bore pile mungkin banyak penyedia jasa bor pile yang sudah membuat artikel atau penjelasan masing. Jenis mini bored pile ini dapat digunakan untuk pembuatan pondasi dengan pengeboran tanah pada ukuran bore pile dengan diameter lubang 30 cm, 40 cm hingga 80 cm. Kami sudah berpengalaman selama belasan tahun dalam bidang spesialisasi pondasi bore pile dan pondasi pancang, dengan ketelitian dan kualitas terbaik untuk menghasilkan pondasi yang teruji kokoh dan kuat. Cara atau metode kerja pondasi strauss pile. Beberapa jenis alat dan metode pengerjaan bor pile. Daya dukung tanah, diameter bored pile, kedalaman bored pile, dan juga jumlah bored pile dalam satu titik, serta metode pelaksaan pondasi bored pile pada bangunan gedung rumah sakit yakni rsj prof dr. Adapun metode bore pile menggunakan sistem bor basah (wet boring), sehingga dibutuhkan air yang cukup sebagai kelancaran pelaksanaan pekerjaan pengeboran. Pasang pipa tremi bila terdapat muka air tanah dalam lubang bor 4. Dalam pembuatannya bor pile mempunyai 2 sistem metode kerjanya, yaitu : Dengan mesin ini bisa dilaksanakan pengeboran dengan pilihan diameter 30 cm, 40 cm, 50 cm, 60cm. Bore pile menggunakan mesin mini crane. Jasa pembuatan pondasi bor strauss pile manual ini memiliki bentuk mirip dengan tabung panjang yang fungsinya nanti yaitu. Jika ada perubahan dari metode kerja terlebih dahulu harus di setujui oleh pengawas lapangan.

Related : Metode Kerja Bore Pile Manual : Hadi jaya bore land :.